A blog is an odd place to keep track of this sort thing, but it needs to be written down somewhere and I can share this for feedback. Here’s what we’re starting with:

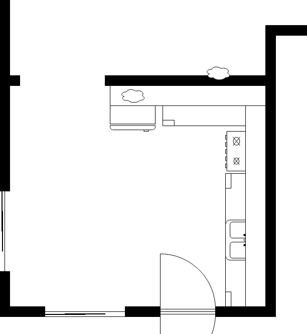
That is more-or-less to scale with one big diagrams.net (formerly known as drawio) grid squares being a square foot and the resolution limit being a quarter that. So, it’s about 13×11. It measures exactly 11 feet long – inside the floor molding.
The little cloud things are duct vents. Aside from the lack of dining space, the single biggest issue is that the cupboards are g*d-awful ugly knotty-pine hunting-lodge chic.
Where we’re going:

The biggest issue drawing this: The world lies to me. The “standard” counter depth is 24 inches, yet the standard range depth is 28 to 30 inches and refrigerators run about the same – according to the Internet. None of that stands up to any measurement I have ever made, in this kitchen or any other. Since this is not a blueprint, I went with 27 (two grids + one quarter) inch deep counters and made all the appliances fit. We’ll see how that works out in practice.
Points of interest:
- That wall will go. It’s the 21st century. If it’s structural, I’ll buy a titanium beam. I’m fine with a support column at the end, if necessary.
- The little cloud on the right can be a duct vent (either down at the countertop or “drawing-up” toward the living room), not cupboard space.
- Note how the windows are recessed; that’s actual not a drawing artifact. The countertop will seamlessly become the window sills.
- There will be a deck wrapping around the outside (walkway width on the drawing-bottom, but room-sized on the drawing-left) so the long window will make an excellent pass-thru, which means screen removal must be easy.
- The cupboard strip above the dining counter will have glass doors on both sides. It will hang down from the ceiling and have lights on its bottom. About a foot tall; definitely less than two.
- No cupboards below the dining counter, but a raised floor so one’s feet don’t dangle when sitting on the stools – it will be counter-top height.
- The end of the dining counter will have rounded corners; I think a semi-circle would be too much.
- The end of the long counter will also have a rounded corner, which means the under-cabinets need to end a bit early. I see the space underneath as the cat-food location.
- The other corner is behind the door and semi-obstructed (or least “out of the way”) when the refrigerator is open, so that can be square to keep the cupboard space beneath it.
- The counter-tops will be our desired height. 39 inches is looking good, but ergonomic studies are underway (I’m putting cutting boards at various heights while cooking). That’s close enough to the standard (36 inches) that I’m willing to just increase the “toe-plate” height rather than actually customize the cabinet height.
- The above-the-counter cabinets will be top-of-window to ceiling all the way around. Only the small section above the dishwasher (that gray circle thing) will extend downward to full-height cabinet. The section above the refrigerator will be shorter.
- These will be taller (lower?) than the set above the dining counter, which makes the junction a bit odd, but it’s a bit odd to accommodate that vent. Something not-aesthetically distressing will be done.
- The cooktop will not be a range. It will be built-in, but still have an oven below it. No idea what will go in that stupid “under oven pan space” that electric ranges have where gas ranges have their broiler.
- Speaking of which, the cooktop will be gas. I don’t care about the oven; whatever is convenient.
- The sink will be a two-sider, but with asymmetric “halves”. The narrow (usually shallower, too) half – on the dishwasher side – gets the disposal. It will be an under-counter mount.
- The appliance wall only has one under-counter cabinet: under the stove is the oven; the dishwasher is under; under the sink is a cabinet, but just for cleaning supplies.
- The rest of the under-counter cabinets will have those pull-out-drawers-on-rails things.
- A lazy Susan in the bottom corner. I would drop the upper corner to full-height just for another one there.
- The little box between the refrigerator and the wall is filler so the refrigerator door will open, just a tiny broom closet, which will extend to the ceiling; with two doors, though.
- I’d like a hood that vents outside. That should be possible since there is nothing (of which I’m aware) between the ceiling and the roof. A fake cabinet door covering the pipe – or a real door into a cabinet filled with pipe – will do fine. Although, breaking up the line of cabinetry may be the “not aesthetically distressing” solution to the height difference and vent issue mentioned above. Perhaps that ends before the hood with the tall cabinet over the dishwasher (see above and another option below).
- I’m not thrilled with the lack of counter space between the sink and the refrigerator. I’d much prefer half the dishwasher width on either side of the sink – but drain issues and the existence of the dishwasher make that not-possible. If a narrow dishwasher and some drain-pipe wizardry could swap the dishwasher/sink placement, that would be great. This would put a narrow counter segment between the sink the stove, which would be handy and allow a baking-tin cupboard below and a full-height spice/ingredient cabinet above (and might be the break in the line for the hood, see above). I really like this layout, but don’t think it will work. I will be happy to be wrong.

I can has planz! Now to see what becomes of them… Update: Plan B has been renamed to Plan A because I like it better and surely a clever plumber can deal with the drain issue.
Update: Doh! The vent issue is simple to solve: There will be a raised floor under the dining counter (see the elevation). That will be hollow. We can put a duct through that and slap a vent on either side. A heating vent near the floor will be more effective than one over a refrigerator, anyway. There’s also a cold-air return in the corner between the windows. That will need to be vented from the toe kicks.
Cooking breakfast today (in a different kitchen, not the “before” diagram above), I was struck by two questions:
* Where will the pots and pans go?
* Where is the cutlery drawer?
OK, three questions: The cutlery drawer needs to be significantly shorter than standard because standard is stupidly tall for cutlery. Raising the counter three inches and cutting that drawer height in half should give me an extra drawer in that “stack”. I’ll try a 40″ countertop, because that would allow a 3-inch cutlery drawer over the dishwasher, which has a “standard” height of 35 inches, which says “counter takes an inch”, which means a 39″ countertop has 3″ for a drawer, which would need a bottom and some framing space under it. A 2″ tall drawer seems a bit short.
Tonight’s project: An elevation view of the appliance wall.
LikeLike
Requirement Conflict! “The counter-tops will be our desired height.” vs “The countertop will seamlessly become the window sills.”
Resolution: our desired height is the height of the window sills.
The existing sill happens to be 37″. There is about an inch between the level of the sill and the “you don’t want to go higher” point on the window frame, so 38″ is possible with the existing window. But we’re not keeping the existing window on drawing-left. I might gratuitously replace the other one just to keep them the same style.
So, before I can order cabinets, I need to know what’s going on with that window.
LikeLike
David, you should have commented. I need commenters! I’m not sure why, but it’s something bloggers need.
Anyway, David’s comment was: Don’t block the door from opening all the way.
This is a legitimate issue that we’ve run into several times during the recent move. The trick is hinge-pin removal. The meta-trick is keeping the hinge-pins removable. They get gunky over time. Every time one oils the hinges (it’s an outside door; it will start to squeak), make sure the pins are still pullable.
In one case in Denver, even pulling the hinge pins wasn’t enough and we had to remove the jambs to get furniture through. Not much can be done about that and I think the mere existence of the screen door will be a bigger issue than the door jambs.
[Ed note to myself: Even on my own blog, the “website” field auto-fills with gravatar.com/markedup2. I have no idea what that is; let’s find out…]
LikeLike